Parkhotel Graz

Parkhotel Graz

Wellness mit historischem Charakter

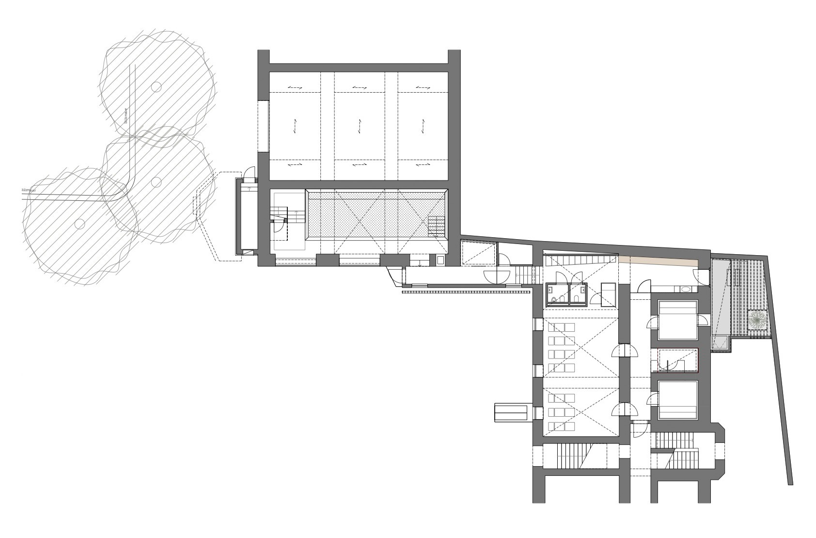
Das Parkhotel Graz ist ein 4* Superior Hotel unweit der Grazer Altstadt. Die baulichen Anfänge der Gesamtanlage reichen bis ins 16. Jahrhundert auf das „Gasthaus zur Goldenen Birn“ zurück. Im Mittelpunkt der uns gestellten Aufgabe – die Neugestaltung und Erweiterung des bestehenden Wellnessbereiches – steht der Umgang mit der vorgefundenen und teilweise historischen Gebäudestruktur. Das Ziel war es, durch sensible Eingriffe den Charakter des Hauses zu stärken und eine stimmige und zeitgemäße Gesamtanlage zu schaffen.

Ort: Graz
Fertigstellung: April 2018
Generalplanung
Einrichtung
Örtliche bauaufsicht
Kategorie: Tourismus
Fotos: DI Manuel Draschl
Parkhotel Graz - Bild 1
Durch den Rückbau auf die ursprüngliche Grundstruktur entstehen zwei großzügige Raumeinheiten (Hallenbad / Ruheraum), welche in Kombination mit den Gängen, dem zur Gänze überarbeiteten Erker und dem neugestalteten Saunahof, eine abwechslungsreiche Raumabfolge entstehen lassen. Das geschärfte räumliche Gefüge wird durch Möbeleinbauten ergänzt, welche einerseits die funktionellen Notwendigkeiten aufnehmen und andererseits dem hohen Qualitätsanspruch des Hotels gerecht werden.

Das erarbeitete Lichtkonzept hebt die Qualitäten der Räume und Materialien hervor, schafft Bereiche unterschiedlicher Privatheit und unterstreicht die Klarheit der finalen räumlichen Struktur.
Parkhotel Graz - Bild 2
Parkhotel Graz - Bild 3
Parkhotel Graz - Bild 4
Parkhotel Graz - Bild 5

Pläne